Profile
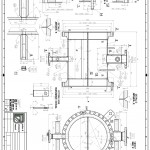
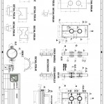
We are a team of designers, technologists and EWE (European Welding Engineer) with many years of experiences in the design and manufacturing of Pressure vessels, Heat exchangers and Columns for Chemical and Petrochemical industry.
We provide a complete design documentation from project drawings and datasheets:
- Drawings (General assemblies, Details, Measure plans, Non-destructive plans, etc.)
- Strength calculations
- Inspection and Test plans
- Other documentation (manuals acc. to PED 97/23/EC and GOST R, Risk analysis, etc.)
We provide the complete documentation for platforms, ladders and brackets for all units as well.
We also cooperate with company which provide the documentation for steel construction and halls.
Codes:
- ASME Code Div.1
- EN 13445
- AD 2000-Merkblatt
- CODAP
- TEMA
- ČSN 69 0010
Based on the requirements, we implement to those Codes: PED 97/23/EC, GOST R, API, NACE and etc.
Contact:
+420 728 262 775
info@bpv-design.cz














































